Neubauwohnung in Eppstein: Stadtnahe Ruheoase mit idealer Anbindung
Eckdaten
- Art Etagenwohnung
- Lage 65817 Eppstein
- Kaufpreis 390.000,00 €
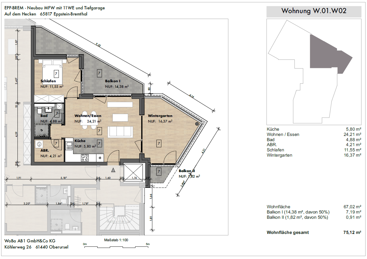
- Wohnfläche ca. 75 m²
- Zimmer 2.5
- Baujahr 2025
- Heizungsart Fußbodenheizung, Wärmepumpe
- Stellplatztyp Tiefgarage
- Garagenkaufpreis 25.000,00 €
- Bodenbelag Vinyl
- Ausstattung des Bades Fenster, Dusche
- Zustand Erstbezug
- Immobilien-ID 8438
- Provision 2,98 % inkl. MwSt.
Immobilie
Diese attraktive Neubauwohnung im Obergeschoss vereint modernen Wohnkomfort mit einer durchdachten Raumaufteilung. Der großzügige Wohn- und Essbereich ist lichtdurchflutet und bietet direkten Zugang zu einem gemütlichen Wintergarten, der sich ideal als zusätzlicher Wohnraum, Pflanzenoase oder ruhiger Rückzugsort nutzen lässt. Ein angrenzender Balkon erweitert den Wohnkomfort nach draußen und lädt zu entspannten Stunden an der frischen Luft ein.
Das separate Schlafzimmer bietet ausreichend Platz für individuelle Einrichtungsideen und sorgt für eine angenehme Privatsphäre. Das moderne Badezimmer überzeugt mit zeitgemäßer Ausstattung und stilvollen Materialien.
Ein praktischer Abstellraum innerhalb der Wohnung sorgt für zusätzlichen Stauraum und macht die Flächennutzung besonders effizient. Die Wohnung befindet sich in einem gepflegten Neubau mit zeitgemäßer Energieeffizienz und bietet damit ein zukunftssicheres Wohnkonzept. Ideal für Singles, Paare oder alle, die eine hochwertige und ruhige Wohnatmosphäre schätzen.
Lage
Eppstein-Bremthal liegt in einer äußerst attraktiven und verkehrsgünstigen Lage am Rand des Rhein-Main-Gebiets. Der Ortsteil besticht durch seine ruhige, naturnahe Umgebung und zugleich hervorragende Anbindung an den öffentlichen Nahverkehr. Mehrere Buslinien verbinden Bremthal zuverlässig mit den umliegenden Gemeinden und den Stadtzentren der Region. Besonders bequem ist zudem die S-Bahn-Anbindung: Die Haltestelle Bremthal bietet regelmäßige Verbindungen nach Frankfurt, Wiesbaden und Mainz, sodass Pendler ebenso wie Familien von kurzen Wegen und hoher Flexibilität profitieren. Dank dieser optimalen Verkehrsanbindungen lassen sich sowohl städtische Ziele als auch Freizeit- und Naturangebote schnell und unkompliziert erreichen.
Ausstattung
– Energetische Ausstattung EH55
– Heizungsanlage Luft-Wasser-Wärmepumpe
– Fußbodenheizung mit Einzelraumsteuerung
– Aufzug
– Türsprechanlage mit elektrischem Türöffner
– Wohnungseingangstür mit Spion/weiß
– Innentüren weiß mit Edelstahldruckergarnitur
– Sanitäre Ausstattung Vigour oder gleichwertig
– Fenster 3 Fach verglast mit Fensterfalzlüfter
– Wände und Decken Q2 mit Malervlies und weißem Anstrich
– Hochwertiger Vinylboden
– Elektrische Rollladenantriebe
– Bäder gefliest bis 1,5 m und Malervlies
Energieausweisangaben
- Enerigeausweistyp Bedarfsausweis
- Energiekennwert 17 KWh(m²*a)
- Energieausweis erstellt am 20.11.2024
- Energieausweis gültig bis 20.11.2034
- Heizungsart Fußbodenheizung Wärmepumpe
Grundrisse
Herzlichen Dank für Ihre Anfrage.
Wir werden diese so schnell wie möglich bearbeiten.


