Friedberg: Attraktive Neubauwohnung in traumhafter Wohnlage
Eckdaten
- Art Etagenwohnung
- Lage 61169 Friedberg
- Kaufpreis 462.100,00 €
- Wohnfläche ca. 68 m²
- Zimmer 2
- Kellerfläche ca. 3 m²
- Baujahr 2026
- Etagenzahl 4
- Etage 3
- Alt-/Neubau Neubau
- Heizungsart Wärmepumpe
- Anzahl Balkone 1
- Stellplatztyp Aussenstellplatz
- Stellplatzanzahl 1
- Stellplatzkaufpreis 12.000,00 €
- Bodenbelag Dielen
- Ausstattung des Bades Dusche, Fenster, Badewanne
- Zustand Erstbezug
- Immobilien-ID 8445
Immobilie
Diese modern gestaltete Erdgeschosswohnung lädt sofort zum Wohlfühlen ein. Auf rund 68 m² erwartet Sie ein heller, offen gestalteter Wohn- und Essbereich, der mit seinen großen Fensterflächen eine warme, einladende Atmosphäre schafft. Von hier aus betreten Sie direkt die gemütliche Terrasse, die sich wunderbar für entspannte Momente an der frischen Luft eignet.
Der offene Küchen- und Essbereich bietet viel Raum für kreative Einrichtungsideen – ganz nach Ihrem persönlichen Stil. Das freundliche Schlafzimmer besticht durch seine ruhige Lage und schafft einen harmonischen Rückzugsort für erholsame Nächte.
Das stilvolle Badezimmer ist ein echtes Highlight: Mit Badewanne und separater Dusche bietet es den perfekten Ort, um den Tag entspannt zu beginnen oder ausklingen zu lassen. Hochwertige Materialien und sanfte Farbakzente unterstreichen den eleganten Charakter der Wohnung.
Der Neubau ist zudem mit einem Aufzug ausgestattet, der einen komfortablen Zugang ermöglicht und das Wohngefühl angenehm abrundet.
Lage
Friedberg liegt im Bundesland Hessen, rund 30 Kilometer nördlich von Frankfurt am Main, und ist die Kreisstadt des Wetteraukreises. Die Stadt befindet sich am Übergang der fruchtbaren Wetterau zur Ausläuferzone des Taunus im Westen und des Vogelsbergs im Osten. Geprägt wird die Lage durch den Fluss Usa, der durch das Stadtgebiet fließt und in die Wetter mündet. Die Umgebung Friedbergs ist landwirtschaftlich stark genutzt, was der Wetterau den Ruf einer der fruchtbarsten Regionen Deutschlands eingebracht hat. Durch die Nähe zu Frankfurt und zur Metropolregion Rhein-Main ist Friedberg verkehrstechnisch sehr gut angebunden: Über die Bundesautobahn A5 sowie mehrere Bundesstraßen und Bahnverbindungen ist die Stadt schnell erreichbar. Die erhöhte Lage der historischen Altstadt mit der markanten Burg Friedberg bietet zudem weite Ausblicke über die Wetterau. Insgesamt verbindet Friedberg die Vorzüge einer traditionsreichen Stadt mit einer günstigen geografischen Lage im Herzen Hessens.
Ausstattung
+ Es handelt sich bei den Bildern um Beispiele !
+ Aufzug
+ Fußbodenheizung
+ Kellerabteil mit Stromanschluss
+ Abstellraum Kinderwagen
+ Bodenbelag Dielen Eiche
+ Bodenbelag Feinsteinzeug oder Granit in Küche, Bad, WC und Abstellraum
+ Bodenbelag WPC Balkon, Terrasse, Dachterrasse
+ Wände und Decken mit Putz in Q3- Qualität
+ Kunststofffenster 3-fach verglast mit elektrisch betriebenen Rollläden
+ Wohnungseingangstür Holztürblatt glatt weiß einbruchhemmend
Widerstandsklasse RC 2 mit 3-facher Verriegelung
+ Wohnungstüren weiß
+ Waschmaschinen- und Trockneranschluss im Bad
+ Ein Stellplatz kann für 12.000 € erworben werden
Sonstiges
• KfW-40-Plus-Standard: Höchste Energieeffizienz, langfristig niedrige Betriebskosten
• QNG-Zertifizierung: Nachhaltige Bauqualität, zukunftssicheres Investment
• Rendite über 10 %: Attraktive wirtschaftliche Perspektive für Kapitalanleger
• Hohe Mietnachfrage: Moderne Ausstattung + geringe Energiekosten steigern Vermietbarkeit
• Wertsichernd: Nachhaltige Bauweise und zeitgemäße Architektur
• Optimale Förderbasis: Attraktive staatliche Rahmenbedingungen (KfW) nutzbar
• Stabile Anlage: Ideal für langfristige und renditeorientierte Investoren
Energieausweisangaben
- Heizungsart Wärmepumpe
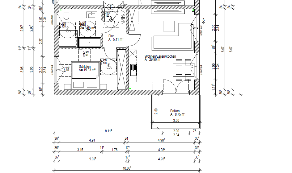
Grundrisse
Herzlichen Dank für Ihre Anfrage.
Wir werden diese so schnell wie möglich bearbeiten.




