Florstadt: Exklusives Neubau-Einfamilienhaus mit ca. 120 m² Wohnfläche nach DIN 277
Eckdaten
- Art Einfamilienhaus
- Lage 61197 Florstadt – Stammheim
- Kaufpreis 499.000,00 €
- Wohnfläche ca. 121 m²
- Grundstück ca. 552 m²
- Zimmer 4
- Baujahr 2026
- Etagenzahl 2
- Alt-/Neubau Neubau
- Heizungsart Wärmepumpe
- Gäste-WC ja
- Stellplatztyp Aussenstellplatz
- Stellplatzanzahl 2
- Stellplatzkaufpreis 7.500,00 €
- Ausstattung des Bades Dusche, Badewanne, Fenster
- Zustand Erstbezug
- Immobilien-ID 8469
Immobilie
In ruhiger und attraktiver Lage von Florstadt entsteht ein modernes Einfamilienhaus, das zeitgemäßen Wohnkomfort mit durchdachter Architektur verbindet. Auf einer Grundstücksfläche von ca. 552 m² bietet dieses Haus ideale Voraussetzungen für Familien oder Paare, die Wert auf Großzügigkeit, Flexibilität und Lebensqualität legen.
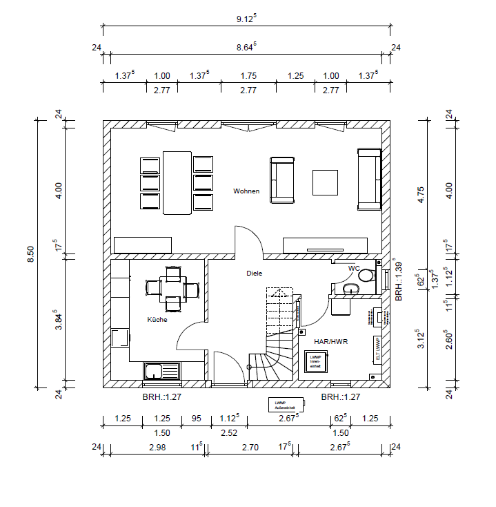
Die Netto-Raumfläche von ca. 120 m² nach DIN 277 verteilt sich harmonisch auf zwei Ebenen und überzeugt durch ein intelligentes Raumkonzept. Herzstück des Hauses ist der offene Wohn- und Essbereich, der durch große Fensterflächen lichtdurchflutet ist und ein angenehmes Wohnambiente schafft. Die offene Gestaltung kann flexibel variiert und individuell an Ihre Wünsche angepasst werden.
Vom Wohnbereich aus gelangen Sie direkt auf die Terrasse, die an warmen Tagen zum Entspannen, Essen im Freien oder zu geselligen Stunden mit Familie und Freunden einlädt. Der angrenzende Garten bietet auf dem großzügigen Grundstück vielfältige Möglichkeiten zur persönlichen Gestaltung.
Das Erdgeschoss wird durch ein praktisches Gäste-WC ergänzt, das sowohl im Alltag als auch bei Besuch für zusätzlichen Komfort sorgt.
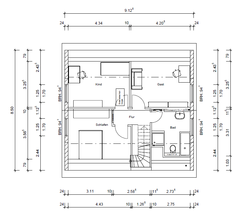
Im Obergeschoss befinden sich drei gut geschnittene Schlafzimmer, die flexibel als Kinder-, Gäste- oder Arbeitszimmer genutzt werden können. Ergänzend besteht die Möglichkeit, ein Ankleidezimmer oder ein separates Büro zu realisieren. Das modern geplante Tageslichtbad überzeugt mit einer Badewanne, einer separaten Dusche sowie einem Fenster, das für natürliche Belichtung und optimale Belüftung sorgt.
Dieses Einfamilienhaus vereint modernes Wohnen, funktionale Architektur und eine attraktive Lage in Florstadt – ein Zuhause, das sich Ihren Lebensplänen anpasst und Raum für Zukunft schafft.
Lage
Dieses Einfamilienhaus wird im Florstädter Stadtteil Stammheim erbaut. Die Gemeinde Florstadt ist über Busverbindung an Friedberg angeschlossen. Von Friedberg gibt es alle 20 min eine S- Bahn Verbindung nach Frankfurt. Einkaufsmöglichkeiten für den täglichen Bedarf sind am Ort umfangreich verfügbar, ebenso Kindergärten und Schule. In der Karl Weigand Schule sind als Schulform die Grundschule, Förderstufe, Hauptschule und Realschule integriert.
Ausstattung
– Bei den Bildern handelt es sich um eine Visualisierung
– Zwei KFZ-Stellplätze für je 7.500€
– Massivbauweise in Porenbeton mit 24 cm Mauerwerk
– Mehrsparten Hausanschluss
– Röhrenspan Innentüren mit CPL Oberflächen in verschiedenen Farben
– Dreifachverglaste Kunststofffensterelemente Standardfarbe Innen/Außen weiß
– Innenfensterbänke aus Werzalit
– Stahlwangentreppe mit Buche Stufen
– WC und Waschtisch Serie Eurovit oder gleichwertig
– Brause- und Badewanne Vigour oder gleichwertig
– Elektrischer Handtuchheizkörper im Bad
– Armarturen Alpha & Ideal Rain oder gleichwertig
– Fliesen im Bad und Gäste-WCgemäß Bauleistungsbeschreibung im Wert von 30,00€ je m²
– Heizung: Luft-Wasser-Wärmepumpe mit 180 Liter Trinkwasserspeicher und Fußbodenheizung in allen Wohnräumen
– 1 frostsichere Außenzapfstelle
– Weitere Ausstattungen im Rahmen der Bemusterung
Energieausweisangaben
- Heizungsart Wärmepumpe
Grundrisse
Herzlichen Dank für Ihre Anfrage.
Wir werden diese so schnell wie möglich bearbeiten.

